9120 BALBOA AVENUE, SAN SIMEON CA 93452
- 2 beds
- 2.00 baths
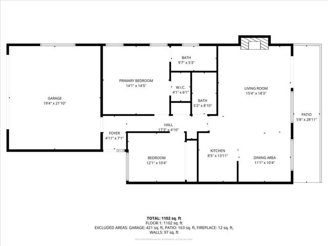
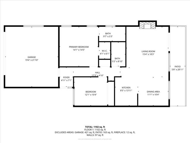
- 1,125 sq.ft.
- 1,125 sq.ft. lot
Property Description
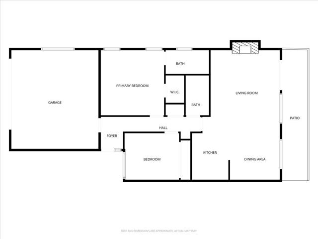
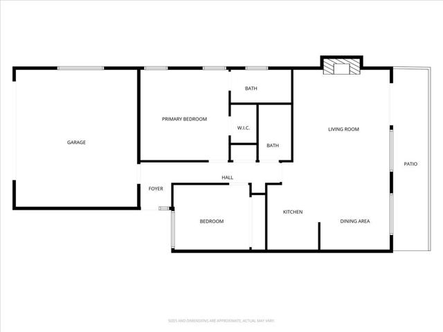
Discover coastal living at its finest in this charming single-level condo nestled within the exclusive Seagate Court complex. Just steps from the Pacific Ocean, this delightful retreat offers the perfect blend of comfort and convenience that makes every day feel like a vacation. The open floor plan creates an inviting atmosphere where natural light dances through the living spaces, while a cozy fireplace anchors the main area for those perfect California evenings. Step onto your private patio to savor stunning ocean views that stretch endlessly toward the horizon. The thoughtfully designed layout features two comfortable bedrooms and two full bathrooms. The oversized primary bedroom provides a peaceful sanctuary complete with a generous walk-in closet, while the guest bathroom boasts a charming skylight that bathes the space in natural illumination. The iconic Hearst Castle sits nearby, offering cultural enrichment and historical grandeur. The quaint village of Cambria awaits just minutes away, while Pico Creek Beach provides additional coastal recreation opportunities. This 1,125-square-foot condo represents an exceptional opportunity to own a piece of California's spectacular Central Coast, where renovation potential meets unparalleled natural beauty.
Listing Courtesy of Greg Haley, Universal Realty Services, Inc
Interior Features
Exterior Features
Use of this site means you agree to the Terms of Use
Based on information from California Regional Multiple Listing Service, Inc. as of October 23, 2025. This information is for your personal, non-commercial use and may not be used for any purpose other than to identify prospective properties you may be interested in purchasing. Display of MLS data is usually deemed reliable but is NOT guaranteed accurate by the MLS. Buyers are responsible for verifying the accuracy of all information and should investigate the data themselves or retain appropriate professionals. Information from sources other than the Listing Agent may have been included in the MLS data. Unless otherwise specified in writing, Broker/Agent has not and will not verify any information obtained from other sources. The Broker/Agent providing the information contained herein may or may not have been the Listing and/or Selling Agent.










































