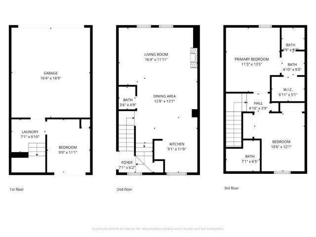
52 WIND SONG, MILPITAS CA 95035
- 3 beds
- 2.50 baths
- 1,353 sq.ft.
- 960 sq.ft. lot
Property Description
*Set on a premium corner location, this beautifully maintained residence stands out with exceptional privacy, abundant natural light, and a charming, well-kept yardan inviting extension of everyday living. The home offers a flexible layout with one bedroom on the main level, ideal for guests or a home office. *The main living area is bright and open, highlighted by large windows that create an airy, welcoming atmosphere. The kitchen is efficiently designed with generous cabinetry, upgraded quartz countertops, and stainless steel appliances. *Spacious primary suite with dual-sink bath and walk-in closet. Side-by-side 2-car garage with Tesla charging, in-home laundry, and recessed lighting. Smart features include motion-sensor switches, smart locks, and motorized blinds. *Top-rated schools nearby, including Mabel Mattos Elementary (10/10) and Milpitas High School (9/10) (Test Score Ratings from GreatSchools), as well as the well-known Stratford School just minutes away. Enjoy easy access to major tech employers such as Nvidia, Google, Apple, and Supermicro, along with convenient proximity to Great Mall, Trader Joes, VTA, and the Milpitas BART Station. Disclaimer: County records show 2 bedrooms; the 3rd bedroom does not have a closet.
Listing Courtesy of Sophie Shen, Keller Williams Thrive
Interior Features
Exterior Features
Use of this site means you agree to the Terms of Use
Based on information from California Regional Multiple Listing Service, Inc. as of April 2, 2026. This information is for your personal, non-commercial use and may not be used for any purpose other than to identify prospective properties you may be interested in purchasing. Display of MLS data is usually deemed reliable but is NOT guaranteed accurate by the MLS. Buyers are responsible for verifying the accuracy of all information and should investigate the data themselves or retain appropriate professionals. Information from sources other than the Listing Agent may have been included in the MLS data. Unless otherwise specified in writing, Broker/Agent has not and will not verify any information obtained from other sources. The Broker/Agent providing the information contained herein may or may not have been the Listing and/or Selling Agent.




























































