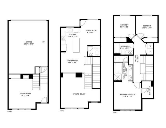
5050 RUFFINO TERRACE, SAN JOSE CA 95129
- 3 beds
- 2.50 baths
- 1,409 sq.ft.
- 1,000 sq.ft. lot
Property Description
Welcome home to 5050 Ruffino Ter, a beautifully updated 3 bed, 2.5 bath home offering 1,409 square feet of thoughtfully designed living space in the sought after Siena at Saratoga Community with distinguished schools. Showcasing dramatic 14 height ceilings, wide plank engineered hardwood floors, fresh interior paint, modern carpet & recessed lighting, the home offers a bright open & welcoming feel. The updated kitchen features quartz countertops, subway tile backsplash, newly painted cabinetry with modern hardware, new stainless steel appliances & a large island that flows seamlessly into the dining & versatile family/office space with access to a private covered balcony. Upstairs, the vaulted primary suite offers a walk-in closet & spacious bath with dual sinks, soaking tub, and separate stall shower. Enjoy central heating & cooling, interior laundry, an oversized two car attached garage, and a gated front courtyard. HOA amenities include a community pool, BBQ area, exterior maintenance & roof coverage. Ideally located minutes from Apple, Nvidia, major commute routes, shopping, dining, and walking distance to local schools, this home combines comfort and convenience, destinations. An excellent opportunity in a neighborhood with true pride of ownership. This one is a MUST SEE!
Listing Courtesy of Andy Tse, Intero Real Estate Services
Exterior Features
Use of this site means you agree to the Terms of Use
Based on information from California Regional Multiple Listing Service, Inc. as of March 20, 2026. This information is for your personal, non-commercial use and may not be used for any purpose other than to identify prospective properties you may be interested in purchasing. Display of MLS data is usually deemed reliable but is NOT guaranteed accurate by the MLS. Buyers are responsible for verifying the accuracy of all information and should investigate the data themselves or retain appropriate professionals. Information from sources other than the Listing Agent may have been included in the MLS data. Unless otherwise specified in writing, Broker/Agent has not and will not verify any information obtained from other sources. The Broker/Agent providing the information contained herein may or may not have been the Listing and/or Selling Agent.




































