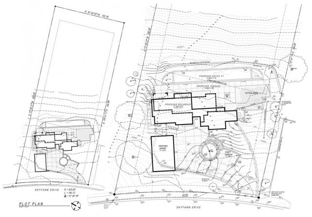
3824 SKYFARM DRIVE, SANTA ROSA CA 95403
- 49,658 sq.ft. lot
Property Description
Amongst the rare estate lots left, this unique offering is positioned near the top of the prestigious Skyfarm Community, and offers far-reaching views. Sited high above Fountaingrove Golf Course, this picturesque lot provides incredible panoramic views of the Valley, Mountains, Green and Water below. For review are designs for a modern masterpiece (design review set), as well as a plan set for the original home, or bring your own creativity and design to this lot, amongst other customized options from local luxury homebuilders. This is a large and versatile lot, which has a substantial driveway with significant setback, and scope for a gate and estate-level of privacy. Surrounded by World-class vineyards and Michelin-starred restaurants, this is the ultimate luxurious Sonoma Valley lifestyle.
Listing Courtesy of Kevin Gioia, Beycome Brokerage Realty Inc.
Use of this site means you agree to the Terms of Use
Based on information from California Regional Multiple Listing Service, Inc. as of October 23, 2025. This information is for your personal, non-commercial use and may not be used for any purpose other than to identify prospective properties you may be interested in purchasing. Display of MLS data is usually deemed reliable but is NOT guaranteed accurate by the MLS. Buyers are responsible for verifying the accuracy of all information and should investigate the data themselves or retain appropriate professionals. Information from sources other than the Listing Agent may have been included in the MLS data. Unless otherwise specified in writing, Broker/Agent has not and will not verify any information obtained from other sources. The Broker/Agent providing the information contained herein may or may not have been the Listing and/or Selling Agent.
 
 



























 
					 
					 
					