310 W AVENIDA DE LAS FLORES, THOUSAND OAKS CA 91360
- 5 beds
 - 3.50 baths
 - 2,483 sq.ft.
 - 9,583 sq.ft. lot
 
Property Description
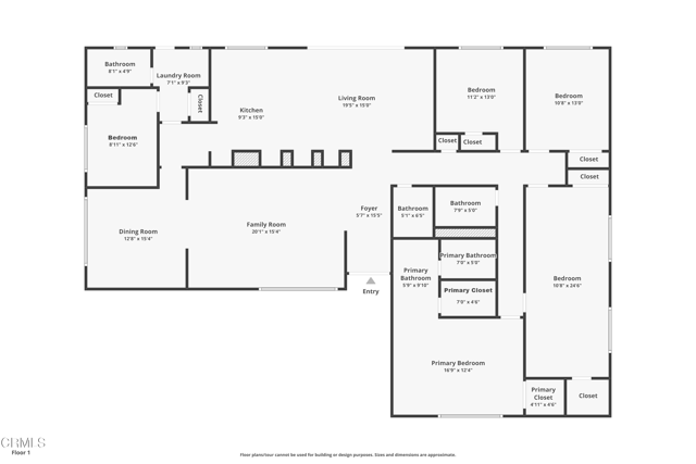
Welcome to 310 W. Avenida de las Flores, a charming 5-bedroom, 3.5-bath home nestled on a spacious 9,583 SF corner lot in the heart of Thousand Oaks. Offering nearly 2,500 SF of comfortable living space, this property is ideal for families, multi-generational living, or even potential business use like assisted living. Looking for a home with ADU potential? The bedroom and bath that sit facing Siesta Ave may lend itself well for JADU or ADU (verify with City building dept).Enjoy peace of mind with a recently installed Generac generator, perfect for ensuring you have electricity despite California's rolling blackouts. It is conveniently located near the 101 Freeway, Cal Lutheran University, Los Robles Hospital, The Oaks Mall, and top-rated schools including Aspen Elementary, Redwood Middle School, and Thousand Oaks High School. Bring your paintbrush and imagination to restore this home to its former glory. Home is mainly in original condition but lovingly maintained and cared for. Explore nearby Wildwood Regional Park and all the best of Thousand Oaks living. Don't miss this rare opportunity--schedule your tour today! You must see this property to truly appreciate its potential.
Listing Courtesy of Saul Aguilar, RE/MAX Gold Coast REALTORS
Interior Features
Exterior Features
Use of this site means you agree to the Terms of Use
Based on information from California Regional Multiple Listing Service, Inc. as of October 31, 2025. This information is for your personal, non-commercial use and may not be used for any purpose other than to identify prospective properties you may be interested in purchasing. Display of MLS data is usually deemed reliable but is NOT guaranteed accurate by the MLS. Buyers are responsible for verifying the accuracy of all information and should investigate the data themselves or retain appropriate professionals. Information from sources other than the Listing Agent may have been included in the MLS data. Unless otherwise specified in writing, Broker/Agent has not and will not verify any information obtained from other sources. The Broker/Agent providing the information contained herein may or may not have been the Listing and/or Selling Agent.
 

















































