3058 SAN JOSE VINEYARD COURT, SAN JOSE CA 95136
- 4 beds
- 3.50 baths
- 2,002 sq.ft.
Property Description
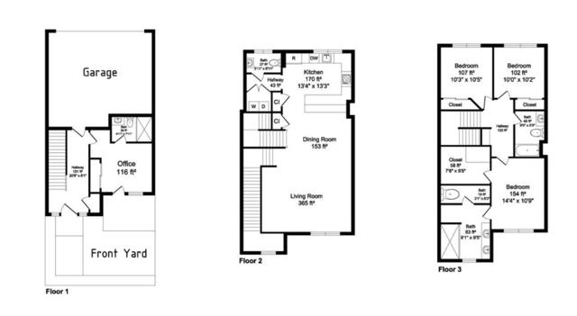
Discover a rare opportunity in Communication Hills! This exceptional townhome is situated on one of the most peaceful streets in the community, offering privacy and open views. Featuring 4 bedrooms, 3.5 bathrooms, and approximately 2,002 square feet of thoughtfully designed living space, this home combines comfort, functionality, and scenic surroundings.The main living level boasts an open-concept layout filled with natural light. The kitchen features a more expansive design with a large island ideal for cooking and entertaining. High ceilings enhance the sense of space and openness throughout.Upstairs, the spacious primary suite offers a large walk-in closet and a beautifully appointed ensuite bath. Two additional bedrooms provide flexibility for family, guests, or office use. On the 1st floor, a private bedroom with full bath and direct exterior access opens to a cozy sitting area perfect for extended family or potential rental income.Additional features include central HVAC, double-pane windows, a tankless water heater, and a water softener. Enjoy scenic walking trails, community parks, the Grand Staircase, and breathtaking valley views. Convenient access to VTA Light Rail, Caltrain, Highway 87, Downtown San Jose. Don't miss the chance to call this incredible home yours!
Listing Courtesy of Sharon Wang, Keller Williams Thrive
Exterior Features
Use of this site means you agree to the Terms of Use
Based on information from California Regional Multiple Listing Service, Inc. as of March 18, 2026. This information is for your personal, non-commercial use and may not be used for any purpose other than to identify prospective properties you may be interested in purchasing. Display of MLS data is usually deemed reliable but is NOT guaranteed accurate by the MLS. Buyers are responsible for verifying the accuracy of all information and should investigate the data themselves or retain appropriate professionals. Information from sources other than the Listing Agent may have been included in the MLS data. Unless otherwise specified in writing, Broker/Agent has not and will not verify any information obtained from other sources. The Broker/Agent providing the information contained herein may or may not have been the Listing and/or Selling Agent.
























































