24275 VIA MALPASO, MONTEREY CA 93940
- 4 beds
- 5.00 baths
- 6,003 sq.ft.
- 77,972 sq.ft. lot
Property Description
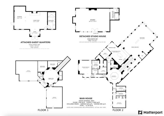
Discover unparalleled luxury in this brand-new architectural masterpiece by Eric Miller. Situated on 1.79 acres in Monterra, this 6,003 sq. ft. estate blends modern sophistication with timeless elegance. The main residence features a circular entry, light-filled great room, formal dining area, soaring ceilings, wide plank European oak floors, and a cozy fireplace nook. The gourmet kitchen boasts high-end appliances, a large island, Quartzite countertops, and a bright breakfast nook. The primary retreat includes a spa-like bath, soaking tub, spa shower, and two walk-in closets. Additional highlights include an office, wine room, media room, elevator, and 4-car garage. Guest quarters include a separate guest cottage or game/party room that opens to the large patio and a 2nd private guest suite. Designed for indoor-outdoor living, the patios feature a fireplace, fire pit, fountain, and multiple spaces for entertaining. The epitome of luxury living in Monterra, offering privacy, consummate craftsmanship, and endless possibilities.
Listing Courtesy of Shelly Lynch, Carmel Realty Company
Interior Features
Exterior Features
Use of this site means you agree to the Terms of Use
Based on information from California Regional Multiple Listing Service, Inc. as of November 4, 2025. This information is for your personal, non-commercial use and may not be used for any purpose other than to identify prospective properties you may be interested in purchasing. Display of MLS data is usually deemed reliable but is NOT guaranteed accurate by the MLS. Buyers are responsible for verifying the accuracy of all information and should investigate the data themselves or retain appropriate professionals. Information from sources other than the Listing Agent may have been included in the MLS data. Unless otherwise specified in writing, Broker/Agent has not and will not verify any information obtained from other sources. The Broker/Agent providing the information contained herein may or may not have been the Listing and/or Selling Agent.





















































