224 PALM, MARINA CA 93933
- 2 beds
- 2.00 baths
- 1,216 sq.ft.
- 4,390 sq.ft. lot
Property Description
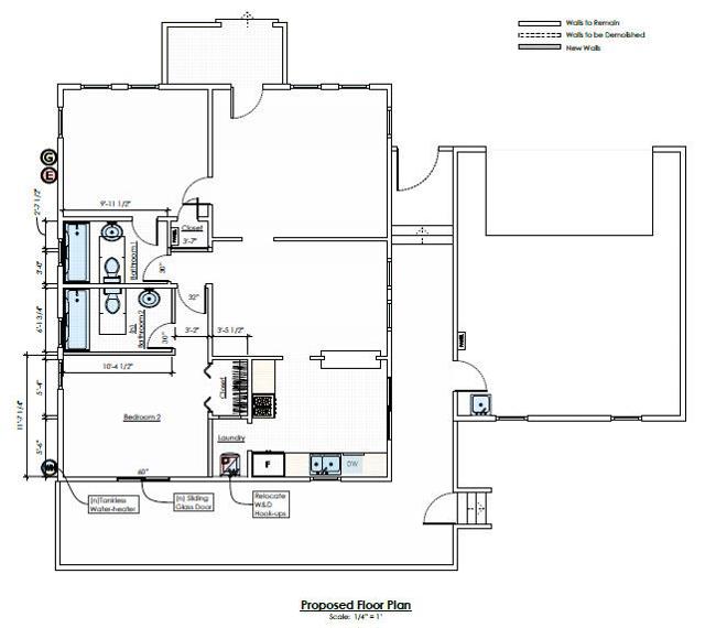
Welcome to this charming 2-bedroom, 2-bathroom home located in Marina, featuring approximately 1,215 square feet of remodeled living space. The exterior preserves its 1950s charm, while the interior has been upgraded to modern standards. Notable updates include new flooring, contemporary doors and windows, modern kitchen appliances, a tankless water heater, and energy-efficient LED lighting fixtures, along with two renovated bathrooms. The spacious kitchen boasts granite countertops and updated cabinets, making it an excellent space for culinary enthusiasts. Adjacent to the kitchen, the dining area provides a comfortable setting for meals, while the expansive living room offers ample space for relaxation and entertaining. The primary suite, located at the rear, features a newly designed layout for added privacy and comfort. Additionally, there is a generously sized second bedroom, and the remodeled hall bath serves both residents and guests. Outdoor living is enhanced by a large wrap-around deck that extends along the side and rear of the property, ideal for gatherings or quiet moments. Practical features include a two-car garage and a dedicated laundry room. This home is in move-in condition, ready for a new owner to create lasting memories in a delightful setting.
, KW Coastal Estates
Interior Features
Exterior Features
Use of this site means you agree to the Terms of Use
Based on information from California Regional Multiple Listing Service, Inc. as of November 3, 2025. This information is for your personal, non-commercial use and may not be used for any purpose other than to identify prospective properties you may be interested in purchasing. Display of MLS data is usually deemed reliable but is NOT guaranteed accurate by the MLS. Buyers are responsible for verifying the accuracy of all information and should investigate the data themselves or retain appropriate professionals. Information from sources other than the Listing Agent may have been included in the MLS data. Unless otherwise specified in writing, Broker/Agent has not and will not verify any information obtained from other sources. The Broker/Agent providing the information contained herein may or may not have been the Listing and/or Selling Agent.














































