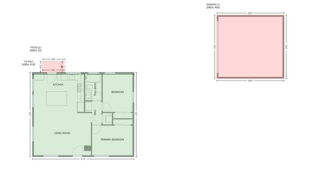
2080 HEATHERDALE AVENUE, SAN JOSE CA 95128
- 1,550 sq.ft.
- 7,370 sq.ft. lot
Property Description
Absolutely gorgeous and full of opportunity, this remodeled duplex blends modern design, strong income potential, and a prime location. Each unit offers 2 bedrooms and 1 bathroom across 775 SF, thoughtfully redesigned in 2019 with quality finishes and timeless style. Both residences feature wood flooring, light-filled open-concept living spaces, and beautifully appointed kitchens with white cabinetry, quartz countertops, designer backsplashes, oversized islands, pendant lighting, and premium KitchenAid appliances. Recessed lighting, dual-pane windows, and air conditioning provide year-round comfort, while designer-inspired bathrooms and in-unit stackable washer/dryers add everyday convenience. Each unit offers its own distinct advantages. 2076 Heatherdale includes a detached two-car garage and extended driveway, currently vacant and ideal for owner-occupancy or projected rental income of $3,100+ per month. 2080 Heatherdale offers a private backyard and a detached, garage-style structure perfect for a home office, studio, gym, or storage, and is tenant-occupied at $3,000/month. Situated on a 7,370 SF lot with inviting curb appeal, this property is minutes from Hwy 280/880 and near Santana Row and Valley Fair. A rare opportunity for both investors and owner-occupants. Don't miss!
Listing Courtesy of Jen Marley, Coldwell Banker Realty
Interior Features
Exterior Features
Use of this site means you agree to the Terms of Use
Based on information from California Regional Multiple Listing Service, Inc. as of April 20, 2026. This information is for your personal, non-commercial use and may not be used for any purpose other than to identify prospective properties you may be interested in purchasing. Display of MLS data is usually deemed reliable but is NOT guaranteed accurate by the MLS. Buyers are responsible for verifying the accuracy of all information and should investigate the data themselves or retain appropriate professionals. Information from sources other than the Listing Agent may have been included in the MLS data. Unless otherwise specified in writing, Broker/Agent has not and will not verify any information obtained from other sources. The Broker/Agent providing the information contained herein may or may not have been the Listing and/or Selling Agent.










































































