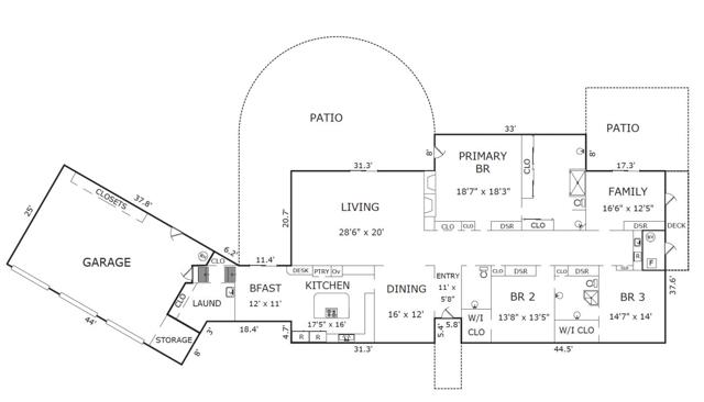
1651 CRESPI LANE, PEBBLE BEACH CA 93953
- 4 beds
- 2.50 baths
- 3,570 sq.ft.
- 75,882 sq.ft. lot
Property Description
Atop the summit of Crespi Lane where some of the greatest estates were built in the early days of Pebble Beach, this delightful Mid-Century Coastal home enjoys Stillwater Cove and 17th Green views from within and without. Single level in design, the residence has the coziness of a cottage and the serenity of an estate where it lives large inside boasting walls of windows facing South and West; soaring vaulted ceilings with skylights throughout and a galley like grand hall where art and collectables can reside in full display. Bordered by Del Ciervo road this long and large corner parcel is a prize unto itself with 1.74 flat acres of open, spacious grassy meadows all around. Delightful as it currently is, there are plans in process under the keen eye of Jun Sillano, AIA of International Design Group, to transform into a grand estate akin to its neighbors on all sides, with an abundance living spaces and terraces overlooking the views. A thoroughly enjoyable residence now and an incredible opportunity to create a great Estate of your own.
Listing Courtesy of Jamal Noorzoy, Carmel Realty Company
Exterior Features
Use of this site means you agree to the Terms of Use
Based on information from California Regional Multiple Listing Service, Inc. as of April 5, 2026. This information is for your personal, non-commercial use and may not be used for any purpose other than to identify prospective properties you may be interested in purchasing. Display of MLS data is usually deemed reliable but is NOT guaranteed accurate by the MLS. Buyers are responsible for verifying the accuracy of all information and should investigate the data themselves or retain appropriate professionals. Information from sources other than the Listing Agent may have been included in the MLS data. Unless otherwise specified in writing, Broker/Agent has not and will not verify any information obtained from other sources. The Broker/Agent providing the information contained herein may or may not have been the Listing and/or Selling Agent.










































