1387 ORES WAY, GILROY CA 95020
- 3 beds
- 3.00 baths
- 2,027 sq.ft.
Property Description
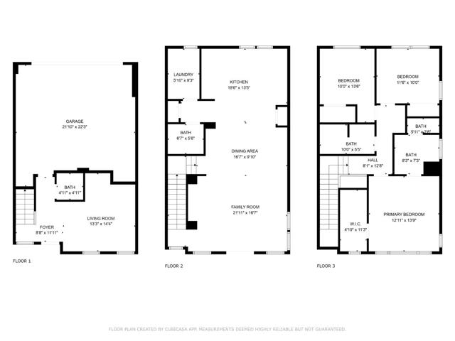
Fire Insurance incl in HOA! Welcome to your new home at 1387 Ores Way in the heart of Gilroy, CA! This cozy spot has 3 bedrooms and 2 full bathrooms, and 2 half bathrooms, spread out over 2,027 square feet plenty of room for you to stretch out and make yourself at home. Inside, you'll love the open floor plan that connects the living and dining areas perfect for hanging out with friends or just kicking back after a long day. And with bedrooms and bathrooms on separate floors, everyone gets a bit of their own space. The house even comes with solar panels, so you can enjoy some savings on your energy bill while being kind to the planet. On those hot days, you'll stay cool thanks to the air conditioning, and having laundry facilities in the building makes life a whole lot easier. Plus, there's a two-car garage and the HOA takes care of the yard workone less thing for you to worry about! The quiet neighborhood is packed with awesome perks, like a playground for the little ones, a grilling area for BBQ weekends, a scenic trail for a morning jog, and gardens to enjoy. There's even a dog park for your furry friends and extra parking when friends come over. With easy access to highways, Gilroy Gardens, and some great hiking trails, nearby grocery and downtown Gilroy.
Listing Courtesy of Gary Palacios, Compass
Exterior Features
Use of this site means you agree to the Terms of Use
Based on information from California Regional Multiple Listing Service, Inc. as of October 15, 2025. This information is for your personal, non-commercial use and may not be used for any purpose other than to identify prospective properties you may be interested in purchasing. Display of MLS data is usually deemed reliable but is NOT guaranteed accurate by the MLS. Buyers are responsible for verifying the accuracy of all information and should investigate the data themselves or retain appropriate professionals. Information from sources other than the Listing Agent may have been included in the MLS data. Unless otherwise specified in writing, Broker/Agent has not and will not verify any information obtained from other sources. The Broker/Agent providing the information contained herein may or may not have been the Listing and/or Selling Agent.












































