4022 BRAEBURN WAY, LOS ANGELES CA 90027
- 3 beds
- 2.50 baths
- 3,103 sq.ft.
- 7,500 sq.ft. lot
Property Description
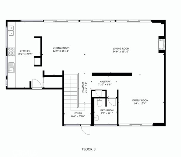
Perched atop the coveted Los Feliz Hills, this striking contemporary residence—designed by architect Robert James Elder—is a true architectural statement. Known as The Industrial House, this 3-bedroom, 3-bathroom home spans over 3,100 square feet across three meticulously designed levels, blending industrial aesthetics with modern comfort. Expansive glass walls and single-pane picture windows flood the interior with natural light and showcase panoramic views of the Los Angeles skyline and surrounding mountains. Whether you're enjoying your morning coffee or a sunset and dinner, every moment is framed by breathtaking scenery. The main level features a spacious living room with bamboo flooring, designer air ducts, and custom built-ins. A sleek galley-style chef’s kitchen is outfitted with Sub-Zero, Miele, and Viking appliances, steel countertops, and an oversized custom spice rack—ideal for both entertaining and everyday living. The open-concept layout includes a den, powder room, and floor-to-ceiling windows for seamless indoor-outdoor ambiance. On the second level, you'll find three serene bedrooms, all offering stunning views. The primary suite boasts a private balcony, dual sinks, and a spa-like glass shower. The additional bedrooms are generously sized and share a beautifully appointed guest bath with an oversized tub and glass shower. The lower level offers flexible living space perfect for a family room, gym, or potential junior ADU, complete with exterior access. With exposed steel beam construction, bamboo finishes, and concrete staircases with designer railings, the home exudes both strength and style. The lower level has been digitally rendered to provide the buyer with options of flex space. PLEASE REVIEW SUPPLEMENTS 3-D VIDEO & ADDITIONAL PHOTOS. Solar panels are paid and in working order. Enjoy sweeping Sunset views, energy saving solar and the opportunity to customize this exceptional hillside home.
Listing Courtesy of Hector Perez, Coldwell Banker Envision
Interior Features
Exterior Features
Use of this site means you agree to the Terms of Use
Based on information from California Regional Multiple Listing Service, Inc. as of March 19, 2026. This information is for your personal, non-commercial use and may not be used for any purpose other than to identify prospective properties you may be interested in purchasing. Display of MLS data is usually deemed reliable but is NOT guaranteed accurate by the MLS. Buyers are responsible for verifying the accuracy of all information and should investigate the data themselves or retain appropriate professionals. Information from sources other than the Listing Agent may have been included in the MLS data. Unless otherwise specified in writing, Broker/Agent has not and will not verify any information obtained from other sources. The Broker/Agent providing the information contained herein may or may not have been the Listing and/or Selling Agent.





















































































